服务热线:
4006-598-119
您的位置: 首页>>山东技术文章

山东海湾GST9000消防主机控制器主机内部结构

发布日期:2023-02-16 15:17:20   浏览量:14913

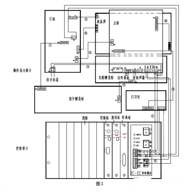
 主机分为操作显示部分、控制部分两个单元,两者之间通过导线相连。 

1)主机操作显示部分及控制部分结构如图1所示。

image.png

上图接线说明:   

⑴背光、打印机5V:两根,液晶背光、打印机工作电源线。 

⑵主板5V:两根,主板工作电源线。 

⑶打印机数据线:26P扁平信号线。 

⑷键盘并行数据线:10P扁平信号线。 

⑸灯板5V:两根,灯板工作电源线。 

⑹灯板数据线:10P扁平信号线。 

⑺键盘扫描线:20P扁平信号线。 

⑻触屏数据线:4线柔性电缆。  

⑼液晶背光:2组共4线,驱动液晶背光照明电源线。注意:此线为高压! 

⑽液晶数据线:34线专用液晶数据电缆。 

⑾转换板数据线:16P扁平信号线。  

⑿24V电源线:两根,主板工作电源线。  

 

2)回路板、通讯板(232、485)、转换板结构说明如图2所示。

image.png

每个回路板及通讯板上均设有1个代表个位的十进制编码开关和代表十位的插针设置开关,   其中短路块短路插针设置开关的第1和第2 针表示“0”,短路第2和第3 针表示   “1”, 短路第3和第4 针表示“2”。    

图例:回路板短路插针设置开关十位为0、编码开关个位为1,则--回路号为1号,第

二回路号为2号。  

3)DC-DC变换模块结构如图3所示。

image.png

4)GST9000控制器母板结构说明如图4所示。

image.png

母板安装在主机控制部分的底部,通过端子与DC-DC变换模块相连。母板上有十个通道插槽,可分别插转换板、回路板、通讯板。本控制器-多可扩展为四个母板箱。  

并行数据总线:用于系统的扩展 

通道槽:插转换板、回路板、通讯板 

XP3:与DC-DC变换模块相连 

ZAn、ZBn(n=1~20):1~10通道的信号总线端子  

注意:当DC-DC变换模块的开关关闭时,总线控制24V并未关断,如需插拔主机箱内的 线路板,请务必先关闭主、备电电源。


在线咨询 联系方式 二维码

服务热线

4006-598-119

扫一扫,关注我们